


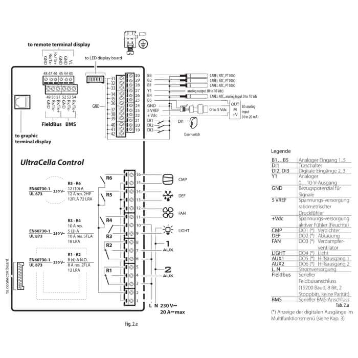
WB000DG0F0 - Carel UltraCella Kühlanlagensteuerung 230V Doppelzeiliges Display,grün6 Relaisausgänge (Kompressor 2 Hp, Abtauung 2 Hp, Verdampferlüfter 16 A, Beleuchtung 16 A und 2 Hilfsausgänge 8 A für zusätzliche Funktionen) ;5 analoge Eingänge (3 x NTC / NTC HT / PT1000 + 1 x NTC / NTC HT / 0...10 V + 1 x 4...20 mA / 0...5 Vrat) ;3 digitale Eingänge2 eingebaute serielle RS485-Eingänge :
Technische Daten:
- Spannung 230VAC
- Verdichter (2 Hp)
- Abtauung (2 Hp)
- Verdampferventilatoren (16 A)
- AUX 1 (8 A)
- AUX 2 (8 A)
- Licht (16A)
Bitte loggen Sie sich ein, um den Preis zu sehen
Beschreibung
Cella Range – Die Plattform für Kühlraumlösungen
Die integrierten und kommunizierenden Steuergeräte und Zubehörteile der CellaRange-Bandbreite maximieren die Anlageneffizienz und Energieeinsparung. Sie erhalten den Wert des Kühlgutes und sind einfach zu installieren, konfigurieren und praktisch zu bedienen.
Modulare Produkte für Kühlraum-Komplettlösungen, kombinierbar und koordinierbar ent
sprechend den Installationsanforderungen, erweiterbar und integrierbar auch bei Nachrüstungsbedarf.
- Komplettansteuerung aller Kühlraumgeräte
- HACCP-konform
- Temperatur-/Feuchteregelung
- Regelung des elektronischen Expansionsventils
- Integration mit DC-Inverter-Lösungen
- Lastmanagement im All-inone- oder Fernbetrieb
- Integrierte Schutzfunktionen und fortschrittliche Überwachung
- Leistungsmodule 1Ph/3Ph: Leistungsmodule für 1-Phasen- und/oder 3-Phasen-Lastmanagement, modulare Verbindung und/oder Fernverbindung (RS485).
- EVD-Module: EVD-Module für die Regelung des elektronischen Ventils, modulare Verbindung und/oder Fernverbindung (RS485).
- Gebrauchstauglichkeit: Reduzierte Installations- und Inbetriebnahmezeit durch fehlersichere Verdrahtung, Vorkonfiguration der Geräte und Integration fortschrittlicher Schnittstellen (Mehrsprachigkeit in Grafik und Text).
- Effizienz: Bis zu 30 % weniger Energieverbrauch als herkömmliche Systeme durch den Einsatz des elektronischen Schrittmotorventils. Zusätzliche Vorteile in Kombination mit Verflüssigersätzen auf Basis der CAREL DC-Inverter-Technologie.
- Produktqualität: Minimale Kühlgut Temperaturschwankungen und komplette Feuchteregelung im Kühlraum mit den Sicherheitsfunktionen der CAREL-Überwachungsplattform.
UltraCella
Frontschaltschrank IP65, 6 Relais mit Leistung bis 2 HP. Abtauung bei Verdichterstopp, elektrisch, Heißgas. Datenlogging-Funktion über USB. Befeuchtung/Entfeuchtung und Doppelverdampfer.Koppelbar mit bis zu 2 EVD-Modulen zur Regelung von 2 elektronischen Ventilen und mit Leistungsmodulen mit Direkt- oder Fernverbindung für 3-Phasen- Lastmanagement. Anschließbar an Überwachungssystem über integrierte serielle RS485-Karte Anschließbar an Verflüssigersätze mit der DC-Inverter-Technologie von CAREL.
Vorteile
- Ansteuerung 2xEEV
- 3PH Entfernte Laststeuerung
- Datenloggerfunktion
